Plan 800
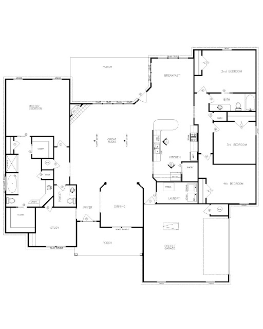
3,010 square foot heated brick home Single level 4 bedroom 2 1/2 bath Living area filled with outside light from Glorius walls of windows to a Fireplace. Breakfast area Large covered porch ,2 vehicle garage, with SHOP
3,010 square foot heated brick home Single level 4 bedroom 2 1/2 bath Living area filled with outside light from Glorius walls of windows to a Fireplace. Breakfast area Large covered porch ,2 vehicle garage, with SHOP
Notes:
1. ALL WALLS ARE 4" UNLESS NOTED OTHERWISE.
2. ALL WINDOW & DOOR LOCATIONS & SIZES ARE APPROXIMATE AS SHOWN. EXACT LOCATIONS & SIZES TO BE DETERMINED BY BUILDER PRIOR TO BEGINNING CONSTRUCTION.
3. ALL CEILING HEIGHTS ARE TO BE DETERMINED BY BUILDER PRIOR TO BEGINNING CONSTRUCTION.
4. ALL SIZES, DIMENSIONS AND LOCATIONS TO BE DETERMINED BY BUILDER PRIOR TO BEGINNING CONSTRUCTION.
2. ALL WINDOW & DOOR LOCATIONS & SIZES ARE APPROXIMATE AS SHOWN. EXACT LOCATIONS & SIZES TO BE DETERMINED BY BUILDER PRIOR TO BEGINNING CONSTRUCTION.
3. ALL CEILING HEIGHTS ARE TO BE DETERMINED BY BUILDER PRIOR TO BEGINNING CONSTRUCTION.
4. ALL SIZES, DIMENSIONS AND LOCATIONS TO BE DETERMINED BY BUILDER PRIOR TO BEGINNING CONSTRUCTION.
Heated Square feet is within walls of heated rooms. Garages are NOT included in Heated Square feet. Screened porches are NOT included in Heated Square Feet Calculations.
deandrafting@gmail.com






No comments:
Post a Comment