Sunday, December 31, 2023

Residential Rendering Isometric AutoCAD

 Residential Isometric Rendering done in AutoCAD. Railed Porches 






#AutoCAD #Rendering #Isometric #lineArt

Plan 17 - 1,420 SF

Plan 17

1,420 square feet 3 Bedrooms 2 Bath spacious Living area with Fireplace, Kitchen with dinning area. 2 vehicle garage.  

>> deandrafting@gmail.com

Plan 17 - 1,420 SF
deandrafting@gmail.com



Plan 17 - 1,420 square feet 3 Bedrooms 2 Bath spacious Living area with Fireplace, Kitchen with dinning area. 2 vehicle garage.  

>> deandrafting@gmail.com


Notes:

1. ALL WALLS ARE 4" UNLESS NOTED OTHERWISE.
2. ALL WINDOW & DOOR LOCATIONS & SIZES ARE APPROXIMATE AS SHOWN. EXACT LOCATIONS & SIZES TO BE DETERMINED BY BUILDER PRIOR TO BEGINNING CONSTRUCTION. 
3. ALL CEILING HEIGHTS ARE TO BE DETERMINED BY BUILDER PRIOR TO BEGINNING CONSTRUCTION. 
4. ALL SIZES, DIMENSIONS AND LOCATIONS TO BE DETERMINED BY BUILDER PRIOR TO BEGINNING CONSTRUCTION. 

Heated Square feet is within walls of heated rooms. Garages are NOT included in Heated Square feet. Screened porches are NOT included in Heated Square Feet Calculations.

deandrafting@gmail.com

Plan 16 - 1,405 SF

 Plan 16


1,405 square feet 3 Bedrooms 2 Bath spacious Living area with Fireplace, Open Kitchen with breakfast area. 2 vehicle garage.  

>> deandrafting@gmail.com


Plan 16 1,405 SF

1,405 square feet 3 Bedrooms 2 Bath spacious Living area with Fireplace, Open Kitchen with breakfast area. 2 vehicle garage.  

>> deandrafting@gmail.com


Notes:

1. ALL WALLS ARE 4" UNLESS NOTED OTHERWISE.
2. ALL WINDOW & DOOR LOCATIONS & SIZES ARE APPROXIMATE AS SHOWN. EXACT LOCATIONS & SIZES TO BE DETERMINED BY BUILDER PRIOR TO BEGINNING CONSTRUCTION. 
3. ALL CEILING HEIGHTS ARE TO BE DETERMINED BY BUILDER PRIOR TO BEGINNING CONSTRUCTION. 
4. ALL SIZES, DIMENSIONS AND LOCATIONS TO BE DETERMINED BY BUILDER PRIOR TO BEGINNING CONSTRUCTION. 

Heated Square feet is within walls of heated rooms. Garages are NOT included in Heated Square feet. Screened porches are NOT included in Heated Square Feet Calculations.

deandrafting@gmail.com

Plan 15 - 1,340 SF

Plan 15

1,340 square feet 3 Bedrooms 2 Bath spacious Living area with Fireplace, Galley Kitchen with dining to outside porch. 2 vehicle garage.  

>> deandrafting@gmail.com



Plan 15 - 1,340 SF



1,340 square feet 3 Bedrooms 2 Bath spacious Living area with Fireplace, Galley Kitchen with dining to outside porch. 2 vehicle garage.  

>> deandrafting@gmail.com

Notes:

1. ALL WALLS ARE 4" UNLESS NOTED OTHERWISE.
2. ALL WINDOW & DOOR LOCATIONS & SIZES ARE APPROXIMATE AS SHOWN. EXACT LOCATIONS & SIZES TO BE DETERMINED BY BUILDER PRIOR TO BEGINNING CONSTRUCTION. 
3. ALL CEILING HEIGHTS ARE TO BE DETERMINED BY BUILDER PRIOR TO BEGINNING CONSTRUCTION. 
4. ALL SIZES, DIMENSIONS AND LOCATIONS TO BE DETERMINED BY BUILDER PRIOR TO BEGINNING CONSTRUCTION. 

Heated Square feet is within walls of heated rooms. Garages are NOT included in Heated Square feet. Screened porches are NOT included in Heated Square Feet Calculations.

deandrafting@gmail.com

Plan 14 - 1,338 SF

Plan 14

1,338 square feet 3 Bedrooms 2 Bath spacious Living area with Fireplace, Galley Kitchen with dining to outside porch. 2 vehicle garage

Plan 14 - 1,338 SF




 1,338 square feet 3 Bedrooms 2 Bath spacious Living area with Fireplace, Galley Kitchen with dining to outside porch. 2 vehicle garage.  

>> deandrafting@gmail.com


Notes:

1. ALL WALLS ARE 4" UNLESS NOTED OTHERWISE.
2. ALL WINDOW & DOOR LOCATIONS & SIZES ARE APPROXIMATE AS SHOWN. EXACT LOCATIONS & SIZES TO BE DETERMINED BY BUILDER PRIOR TO BEGINNING CONSTRUCTION. 
3. ALL CEILING HEIGHTS ARE TO BE DETERMINED BY BUILDER PRIOR TO BEGINNING CONSTRUCTION. 
4. ALL SIZES, DIMENSIONS AND LOCATIONS TO BE DETERMINED BY BUILDER PRIOR TO BEGINNING CONSTRUCTION. 

Heated Square feet is within walls of heated rooms. Garages are NOT included in Heated Square feet. Screened porches are NOT included in Heated Square Feet Calculations.

deandrafting@gmail.com

Plan 13 - 1,245 SF

Plan 13

1,245 square feet 3 Bedrooms 2 Bath spacious Living area Galley Kitchen with dining nook. 2 vehicle garage

deandrafting@gmail.com

Plan 13 - 1,245 SF

 



1,245 square feet 3 Bedrooms 2 Bath spacious Living area Galley Kitchen with dining nook. 2 vehicle garage


Notes:

1. ALL WALLS ARE 4" UNLESS NOTED OTHERWISE.
2. ALL WINDOW & DOOR LOCATIONS & SIZES ARE APPROXIMATE AS SHOWN. EXACT LOCATIONS & SIZES TO BE DETERMINED BY BUILDER PRIOR TO BEGINNING CONSTRUCTION. 
3. ALL CEILING HEIGHTS ARE TO BE DETERMINED BY BUILDER PRIOR TO BEGINNING CONSTRUCTION. 
4. ALL SIZES, DIMENSIONS AND LOCATIONS TO BE DETERMINED BY BUILDER PRIOR TO BEGINNING CONSTRUCTION. 

Heated Square feet is within walls of heated rooms. Garages are NOT included in Heated Square feet. Screened porches are NOT included in Heated Square Feet Calculations.

deandrafting@gmail.com

Plan 12 - 1,325 SF

 Plan 12

1,325 square feet 3 Bedrooms 2 Bath spacious Living area Galley Kitchen with Breakfast nook. 2 vehicle garage

deandrafting@gmail.com

Plan - 12 - 1,325 SF



1,325  square feet 3 Bedrooms 2 Bath spacious Living area Galley Kitchen with Breakfast nook. 2 vehicle garage


Notes:

1. ALL WALLS ARE 4" UNLESS NOTED OTHERWISE.
2. ALL WINDOW & DOOR LOCATIONS & SIZES ARE APPROXIMATE AS SHOWN. EXACT LOCATIONS & SIZES TO BE DETERMINED BY BUILDER PRIOR TO BEGINNING CONSTRUCTION. 
3. ALL CEILING HEIGHTS ARE TO BE DETERMINED BY BUILDER PRIOR TO BEGINNING CONSTRUCTION. 
4. ALL SIZES, DIMENSIONS AND LOCATIONS TO BE DETERMINED BY BUILDER PRIOR TO BEGINNING CONSTRUCTION. 

Heated Square feet is within walls of heated rooms. Garages are NOT included in Heated Square feet. Screened porches are NOT included in Heated Square Feet Calculations.

deandrafting@gmail.com

Plan 9 - 1,408 SF

Plan 9

1,408 square feet 3 Bedrooms 2 Bath spacious Living area with Fireplace, Galley Kitchen with breakfast area large storage closet in 2 vehicle garage.

Plan 9 -  1,408 SF



1,408 square feet 3 Bedrooms 2 Bath spacious Living area with Fireplace, Galley Kitchen large starage closet in 2 vehicle garage

Notes:
1. ALL WALLS ARE 4" UNLESS NOTED OTHERWISE.
2. ALL WINDOW & DOOR LOCATIONS & SIZES ARE APPROXIMATE AS SHOWN. EXACT LOCATIONS & SIZES TO BE DETERMINED BY BUILDER PRIOR TO BEGINNING CONSTRUCTION. 
3. ALL CEILING HEIGHTS ARE TO BE DETERMINED BY BUILDER PRIOR TO BEGINNING CONSTRUCTION. 
4. ALL SIZES, DIMENSIONS AND LOCATIONS TO BE DETERMINED BY BUILDER PRIOR TO BEGINNING CONSTRUCTION. 

Heated Square feet is within walls of heated rooms. Garages are NOT included in Heated Square feet. Screened porches are NOT included in Heated Square Feet Calculations.

deandrafting@gmail.com

Saturday, December 30, 2023

Plan 11 - 1,489SF 2 Story 3 Bed

 Plan 11 

1,489 square feet 2 Story 3 Bed 2 1/2 bath Galley Kitchen Fireplace two vehicle garage 









1,489 square feet 2 Story 3 Bed 2 1/2 bath Galley Kitchen Fireplace two vehicle garage 


Notes:
1. ALL WALLS ARE 4" UNLESS NOTED OTHERWISE.
2. ALL WINDOW & DOOR LOCATIONS & SIZES ARE APPROXIMATE AS SHOWN. EXACT LOCATIONS & SIZES TO BE DETERMINED BY BUILDER PRIOR TO BEGINNING CONSTRUCTION. 
3. ALL CEILING HEIGHTS ARE TO BE DETERMINED BY BUILDER PRIOR TO BEGINNING CONSTRUCTION. 
4. ALL SIZES, DIMENSIONS AND LOCATIONS TO BE DETERMINED BY BUILDER PRIOR TO BEGINNING CONSTRUCTION. 

Heated Square feet is within walls of heated rooms. Garages are NOT included in Heated Square feet. Screened porches are NOT included in Heated Square Feet Calculations.

deandrafting@gmail.com

Plan 10 1,742 SF 4 Bedroom 3 Bathroom

 

Plan 10 

 1,742 SF 4 Bedroom 3 Bathroom efficient Kitchen with Formal Dining Breakfast nook & Family Room with Fireplace. . 

deandrafting@gmail.com












1,742 SF 4 Bedroom 3 Bathroom efficient Kitchen with Formal Dining Breakfast nook & Family Room with Fireplace. 



Notes:
1. ALL WALLS ARE 4" UNLESS NOTED OTHERWISE.
2. ALL WINDOW & DOOR LOCATIONS & SIZES ARE APPROXIMATE AS SHOWN. EXACT LOCATIONS & SIZES TO BE DETERMINED BY BUILDER PRIOR TO BEGINNING CONSTRUCTION. 
3. ALL CEILING HEIGHTS ARE TO BE DETERMINED BY BUILDER PRIOR TO BEGINNING CONSTRUCTION. 
4. ALL SIZES, DIMENSIONS AND LOCATIONS TO BE DETERMINED BY BUILDER PRIOR TO BEGINNING CONSTRUCTION. 

Heated Square feet is within walls of heated rooms. Garages are NOT included in Heated Square feet. Screened porches are NOT included in Heated Square Feet Calculations.

deandrafting@gmail.com

Plan 4 1,417 SF 3 bedroom, Bay Window

 Plan 4 

1,417 SF 3 Bedroom Galley Kitchen with Bay window passthrough over bar to Family Room with Fireplace. Laundry in Garage

deandrafting@gmail.com

deandrafting@gmail.com




1,417 SF 3 Bedroom Galley Kitchen with Baywindow pasthru over bar to Family Room with FirePlace. Laundry in Garage

deandrafting@gmail.com


Notes:
1. ALL WALLS ARE 4" UNLESS NOTED OTHERWISE.
2. ALL WINDOW & DOOR LOCATIONS & SIZES ARE APPROXIMATE AS SHOWN. EXACT LOCATIONS & SIZES TO BE DETERMINED BY BUILDER PRIOR TO BEGINNING CONSTRUCTION. 
3. ALL CEILING HEIGHTS ARE TO BE DETERMINED BY BUILDER PRIOR TO BEGINNING CONSTRUCTION. 
4. ALL SIZES, DIMENSIONS AND LOCATIONS TO BE DETERMINED BY BUILDER PRIOR TO BEGINNING CONSTRUCTION. 

Heated Square feet is within walls of heated rooms. Garages are NOT included in Heated Square feet. Screened porches are NOT included in Heated Square Feet Calculations.

deandrafting@gmail.com




Plan 2 1,540 SF 4 Bedroom

 Plan 2

1,540 SF 4 Bedroom Open Kitchen with Island to Spacious Family Room with FirePlace.

deandrafting@gmail.com





1,540 SF 4 Bedroom Open Kitchen with Island to Spacious Family Room with FirePlace.

Notes:
1. ALL WALLS ARE 4" UNLESS NOTED OTHERWISE.
2. ALL WINDOW & DOOR LOCATIONS & SIZES ARE APPROXIMATE AS SHOWN. EXACT LOCATIONS & SIZES TO BE DETERMINED BY BUILDER PRIOR TO BEGINNING CONSTRUCTION. 
3. ALL CEILING HEIGHTS ARE TO BE DETERMINED BY BUILDER PRIOR TO BEGINNING CONSTRUCTION. 
4. ALL SIZES, DIMENSIONS AND LOCATIONS TO BE DETERMINED BY BUILDER PRIOR TO BEGINNING CONSTRUCTION. 

Heated Square feet is within walls of heated rooms. Garages are NOT included in Heated Square feet. Screened porches are NOT included in Heated Square Feet Calculations.

deandrafting@gmail.com






Friday, December 29, 2023

Plan - 1 3 Bed 2 Bath 1,447sf

 Plan 1 
1,447 Sq Ft 3 Bedroom 2 Bath




  • This home plan is a charming Modern style ranch plan. The exterior of the home features brick, and wood accents. An  porch welcomes guests into the home.
  • Inside the home, the great room, dining room, and kitchen are arranged in an open layout. 
  • The great room is warmed by a fireplace The kitchen includes a large island and pantry.
  • The bedrooms can all be round on the right side of the home. The master bedroom lies under a decorative trayed ceiling. The master bathroom has his/her vanities and a walk-in shower. 
  • Bedrooms 2 and 3 share a centrally located hall bathroom with the main living space. 
  • The homes 2-car garage accesses the home through a convenient mudroom with a catch-all.

deandrafting@gmail.com

Notes:
1. ALL WALLS ARE 4" UNLESS NOTED OTHERWISE.
2. ALL WINDOW & DOOR LOCATIONS & SIZES ARE APPROXIMATE AS SHOWN. EXACT LOCATIONS & SIZES TO BE DETERMINED BY BUILDER PRIOR TO BEGINNING CONSTRUCTION. 
3. ALL CEILING HEIGHTS ARE TO BE DETERMINED BY BUILDER PRIOR TO BEGINNING CONSTRUCTION. 
4. ALL SIZES, DIMENSIONS AND LOCATIONS TO BE DETERMINED BY BUILDER PRIOR TO BEGINNING CONSTRUCTION. 

Heated Square feet is within walls of heated rooms. Garages are NOT included in Heated Square feet. Screened porches are NOT included in Heated Square Feet Calculations.

deandrafting@gmail.com

Thursday, December 28, 2023

Plan 100 3 bedroom 2,457 SF Country Porch

 Plan 100 

2,457 Square Feet (Heated) 3 bedroom Country front porch 2 and 1/2 bath huge living room with, fire place . Large Screened rear porch for #outdoorliving space . two vehicle garage


deandrafting@gmail.com


Notes:
1. ALL WALLS ARE 4" UNLESS NOTED OTHERWISE.
2. ALL WINDOW & DOOR LOCATIONS & SIZES ARE APPROXIMATE AS SHOWN. EXACT LOCATIONS & SIZES TO BE DETERMINED BY BUILDER PRIOR TO BEGINNING CONSTRUCTION. 
3. ALL CEILING HEIGHTS ARE TO BE DETERMINED BY BUILDER PRIOR TO BEGINNING CONSTRUCTION. 
4. ALL SIZES, DIMENSIONS AND LOCATIONS TO BE DETERMINED BY BUILDER PRIOR TO BEGINNING CONSTRUCTION. 

Heated Square feet is within walls of heated rooms. Garages are NOT included in Heated Square feet. Screened porches are NOT included in Heated Square Feet Calculations.

deandrafting@gmail.com

Plan 400 3 Bedroom / 4th Bedroom Option

 Plan 400

3 Bedroom 1,441 SHOWN / 4th Bedroom Option 1,656 Sqft

Efficient Kitchen Layout open to agreeable Family Area with fireplace, Screened covered porch. #storagespace


deandrafting@gmail,com



Plan 400 3 Bedroom 1,441 SHOWN / 4th Bedroom Option 1,656 Sqft

Notes:
1. ALL WALLS ARE 4" UNLESS NOTED OTHERWISE.
2. ALL WINDOW & DOOR LOCATIONS & SIZES ARE APPROXIMATE AS SHOWN. EXACT LOCATIONS & SIZES TO BE DETERMINED BY BUILDER PRIOR TO BEGINNING CONSTRUCTION. 
3. ALL CEILING HEIGHTS ARE TO BE DETERMINED BY BUILDER PRIOR TO BEGINNING CONSTRUCTION. 
4. ALL SIZES, DIMENSIONS AND LOCATIONS TO BE DETERMINED BY BUILDER PRIOR TO BEGINNING CONSTRUCTION. 

Heated Square feet is within walls of heated rooms. Garages are NOT included in Heated Square feet. Screened porches are NOT included in Heated Square Feet Calculations.

deandrafting@gmail.com




Plan 1000 Wrap Around Porch- 1,780 SF

Plan 1000  

2 level Open Victorian Plan. 1,780 Sq Ft with Wrap Around Porch. 4 bedroom 2 level.

Wraparound porches don't need to be spacious or elaborately designed to function well for outdoor living. Most porch areas have fans to help keep things cool. This porch sits close enough to the ground that it does not require railings thus could further simplify the design.
  2 level Open Victorian Plan. 1,780 Sq Ft with Wrap Around Porch 


deandrafting@gmail.com


A wraparound porch is a classic country home feature Tucked under lean toroof overhang, this porch spans the entire front and one side of the home.

Rocking chairs or a swing offer perfect for enjoying the country views.

Notes:
1. ALL WALLS ARE 4" UNLESS NOTED OTHERWISE.
2. ALL WINDOW & DOOR LOCATIONS & SIZES ARE APPROXIMATE AS SHOWN. EXACT LOCATIONS & SIZES TO BE DETERMINED BY BUILDER PRIOR TO BEGINNING CONSTRUCTION. 
3. ALL CEILING HEIGHTS ARE TO BE DETERMINED BY BUILDER PRIOR TO BEGINNING CONSTRUCTION. 
4. ALL SIZES, DIMENSIONS AND LOCATIONS TO BE DETERMINED BY BUILDER PRIOR TO BEGINNING CONSTRUCTION. 

Heated Square feet is within walls of heated rooms. Garages are NOT included in Heated Square feet. Screened porches are NOT included in Heated Square Feet Calculations.

deandrafting@gmail.com





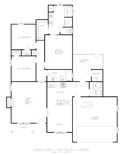
Plan 300 1,435 sqft

 Plan 300 

3 bedroom 1,435 Square feet 

3 bedroom, 2 bathroom Open Kitchen layout spacious dining into ample Family Room with Fire place. #Screenedporch

deandrafting@gmail.com

Plan 300 3 bedroom 1,435 Square feet 

open Kitchen layout spacious dining into ample Family Room with Fire place. 

deandrafting@gmail.com



Plan 300 3 bedroom 1,435 Square feet 

Notes:
1. ALL WALLS ARE 4" UNLESS NOTED OTHERWISE.
2. ALL WINDOW & DOOR LOCATIONS & SIZES ARE APPROXIMATE AS SHOWN. EXACT LOCATIONS & SIZES TO BE DETERMINED BY BUILDER PRIOR TO BEGINNING CONSTRUCTION. 
3. ALL CEILING HEIGHTS ARE TO BE DETERMINED BY BUILDER PRIOR TO BEGINNING CONSTRUCTION. 
4. ALL SIZES, DIMENSIONS AND LOCATIONS TO BE DETERMINED BY BUILDER PRIOR TO BEGINNING CONSTRUCTION. 

Heated Square feet is within walls of heated rooms. Garages are NOT included in Heated Square feet. Screened porches are NOT included in Heated Square Feet Calculations.

deandrafting@gmail.com

Plan 200 3 bedroom

 Plan 200 3 bedroom 1,444 Square feet Heated (Garage not included)

Galley Kitchen open to spacious dining into ample Family Room with Fire place. huge on suite in Master




Plan 200 3 bedroom 1,444 Square feet Heated (Garage not included)

Galley Kitchen open to spacious dining into ample Family Room with Fire place. huge on suite in Master

deandrafting@gmail.com

Wednesday, December 27, 2023

Custom Treatment Center ADA compliant

 

Physical Treatment Center Floor Plan
Moden Facility 2,962 Sq Ft ADA compliant Open Welcoming Reception Open Views waiting with Bay Window, Two Office Suites with Private bathrooms, large Conference meeting room. Six Exam Rooms with Modern accents have access to Jack and Jill Style bathrooms which are #ADA compliant. Large Laboratory Area. Specialty Hair, Nail, and Massage treatment spaces. Laundry Area with storage.
Custom Treatment Center



Notes:
1. ALL WALLS ARE 4" UNLESS NOTED OTHERWISE.
2. ALL WINDOW & DOOR LOCATIONS & SIZES ARE APPROXIMATE AS SHOWN. EXACT LOCATIONS & SIZES TO BE DETERMINED BY BUILDER PRIOR TO BEGINNING CONSTRUCTION. 
3. ALL CEILING HEIGHTS ARE TO BE DETERMINED BY BUILDER PRIOR TO BEGINNING CONSTRUCTION. 
4. ALL SIZES, DIMENSIONS AND LOCATIONS TO BE DETERMINED BY BUILDER PRIOR TO BEGINNING CONSTRUCTION. 



deandrafting@gmail.com

Dr. Offices?

Plan 700 3 bedroom / porches 2,238sf

 Plan 700 

Single Level 3-bedroom Floor Plan, 2,238 sq ft, Slab Foundation, Dormers, walk along country front porch. 2 and 1/2 bathrooms. Sunroom off Master Suite, Formal Dining Adjacent to welcoming entry into well provided living area with fireplace and screened rear porch.

PLAN 700 Single Level 3 bedroom Floor Plan, Slab Foundation, Dormers, walk along country front porch. 2 and 1/2 bathrooms. Sun room off Master Suite,  Formal Dining Adjacent to welcoming entry into well provided living area with fireplace and Screened rear porch.




Notes:
1. ALL WALLS ARE 4" UNLESS NOTED OTHERWISE.
2. ALL WINDOW & DOOR LOCATIONS & SIZES ARE APPROXIMATE AS SHOWN. EXACT LOCATIONS & SIZES TO BE DETERMINED BY BUILDER PRIOR TO BEGINNING CONSTRUCTION. 
3. ALL CEILING HEIGHTS ARE TO BE DETERMINED BY BUILDER PRIOR TO BEGINNING CONSTRUCTION. 
4. ALL SIZES, DIMENSIONS AND LOCATIONS TO BE DETERMINED BY BUILDER PRIOR TO BEGINNING CONSTRUCTION. 

Heated Square feet is within walls of heated rooms. Garages are NOT included in Heated Square feet. Screened porches are NOT included in Heated Square Feet Calculations.

deandrafting@gmail.com

Plan 600 3 bed 2 bath screened porch 1,953sf

 Plan 600

1,953 square feet (heated) 3 bedroom 2 bath ample living area. Fireplace, screened rear Poarch and adjacent Patio for outdoor activities. Luxurious double door entry into formal dining room


deandrafting@gmail.com



1,953 square feet (heated) 3 bedroom 2 bath ample living area. Fireplace, screened rear Poarch and adjacent Patio for outdoor activities. Luxurious double door entry into formal dining room


Notes:
1. ALL WALLS ARE 4" UNLESS NOTED OTHERWISE.
2. ALL WINDOW & DOOR LOCATIONS & SIZES ARE APPROXIMATE AS SHOWN. EXACT LOCATIONS & SIZES TO BE DETERMINED BY BUILDER PRIOR TO BEGINNING CONSTRUCTION. 
3. ALL CEILING HEIGHTS ARE TO BE DETERMINED BY BUILDER PRIOR TO BEGINNING CONSTRUCTION. 
4. ALL SIZES, DIMENSIONS AND LOCATIONS TO BE DETERMINED BY BUILDER PRIOR TO BEGINNING CONSTRUCTION. 

Heated Square feet is within walls of heated rooms. Garages are NOT included in Heated Square feet. Screened porches are NOT included in Heated Square Feet Calculations.

deandrafting@gmail.com

Plan 500 4 Bedroom 1,965sf

Plan 500 
1,965 square feet (heated) Huge Master suite in this 4 bedroom 2 and 1/2 bath modern living area. With open tray ceiling and Fireplace, very spacious open kitchen with breakfast area, screened rear Poarch and adjacent Patio for outdoor enjoyment.

deandrafting@gmail.com



1,965 square feet (heated) Huge Master suite in this 4 bedroom 2 and 1/2 bath modern living area. With open tray ceiling and Fireplace, very spacious open kitchen with breakfast area, screened rear Poarch and adjacent Patio for outdoor enjoyment

Notes:
1. ALL WALLS ARE 4" UNLESS NOTED OTHERWISE.
2. ALL WINDOW & DOOR LOCATIONS & SIZES ARE APPROXIMATE AS SHOWN. EXACT LOCATIONS & SIZES TO BE DETERMINED BY BUILDER PRIOR TO BEGINNING CONSTRUCTION. 
3. ALL CEILING HEIGHTS ARE TO BE DETERMINED BY BUILDER PRIOR TO BEGINNING CONSTRUCTION. 
4. ALL SIZES, DIMENSIONS AND LOCATIONS TO BE DETERMINED BY BUILDER PRIOR TO BEGINNING CONSTRUCTION. 

Heated Square feet is within walls of heated rooms. Garages are NOT included in Heated Square feet. Screened porches are NOT included in Heated Square Feet Calculations.

deandrafting@gmail.com

Plan 21 - 3,445 SF

Plan 21  3,445 SF  3 bedroom 2 and a half bath two level residential dwelling. spiral stair wrap around porch.  island kitchen. 3,445 SF  3 ...